+5493404630253
En Venta
GRAN SUPERFICIE - TODOS LOS SERVICIOS.
Código: 159780

Mariano Moreno 1186, S2252 Gálvez, Santa Fe, Argentina, Galvez, Santa Fe, Argentina.

USD38.000

Casa
Compartir esta Propiedad

Descripción de la Propiedad

*CONCEPTO:
• GRAN SUPERFICIE.
• TODOS LOS SERVICIOS.
• PLUS: CASA DEMOLER O RECICLAR.

*UBICACIÓN:
• MORENO 1186.
• Entre 20 de Junio y Liniers.

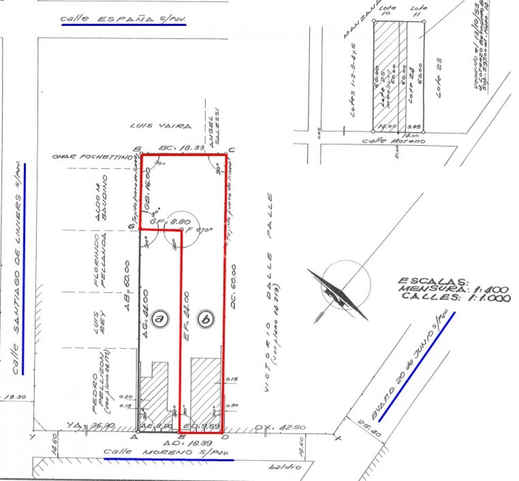
*SUPERFICIES:
• TOTAL: 716,20 m2
• CUBIERTA: 155 m2.

*MEDIDAS DE LOTE:
• Forma irregular en “L”
• 9,60 mts. de Frente.
• 18,39 mts. de Contra-Frente.
• 60 mts. de Fondo (lado Este).

*SERVICIOS:
• Todos los servicios.

*SE DESTACA:
• Superficie importante.
• Buenas vecindades.
• A pasos de Avenida 20 de Junio.

*IDEAL PARA DESEMBARCAR CON PROYECTO DE CONDOMINIO O DEPARTAMENTOS APROVECHANDO TODA LA PROFUNDIDAD DEL LOTE.

Mas detalles
Ver video de la propiedad