+5493404630253
En Venta
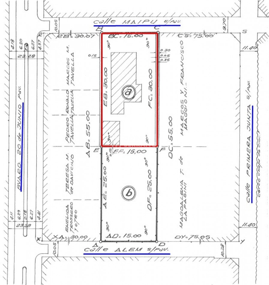
LOTE IDEAL 15X30 - A PASOS DE 20 DE JUNIO! + CASA A RECICLAR O DEMOLER.
Código: 168516

Maipú 466, S2252 Gálvez, Santa Fe, Argentina, Galvez, Santa Fe, Argentina.

USD60.000

Casa
Compartir esta Propiedad

Descripción de la Propiedad

*CONCEPTO:
• LOTE IDEAL 15 x 30 + CASA A RECICLAR O DEMOLER.

*UBICACIÓN:
• MAIPU 466.
• A pasos de 20 de Junio.

*SUPERFICIES:
• TOTAL: 450,00 m2.
• EDIFICADO: 136 m2.

*MEDIDAS DE LOTE:
• 15 mts. de Frente X 30 mts. de Fondo.

*SERVICIOS:
• Todos los servicios.

*SE DESTACA:
• Gran Ubicación y Vecindades.
• Excelentes Medidas y superficie.

*FORMA DE LOTE:
• Rectangular.

*ORIENTACIÓN:
• Frente hacia el Norte.

Mas detalles
Ver video de la propiedad