+5493404630253
En Venta
RECICLADO EN MARCHA! 27 MTS DE FRENTE! BARRIO PROGRESO!
Código: 140728

MAIPU 246, GALVEZ, SANTA FE, ARGENTINA, Galvez, Santa Fe, Argentina.

USD45.000

Casa
Compartir esta Propiedad

Descripción de la Propiedad

*CONCEPTO:
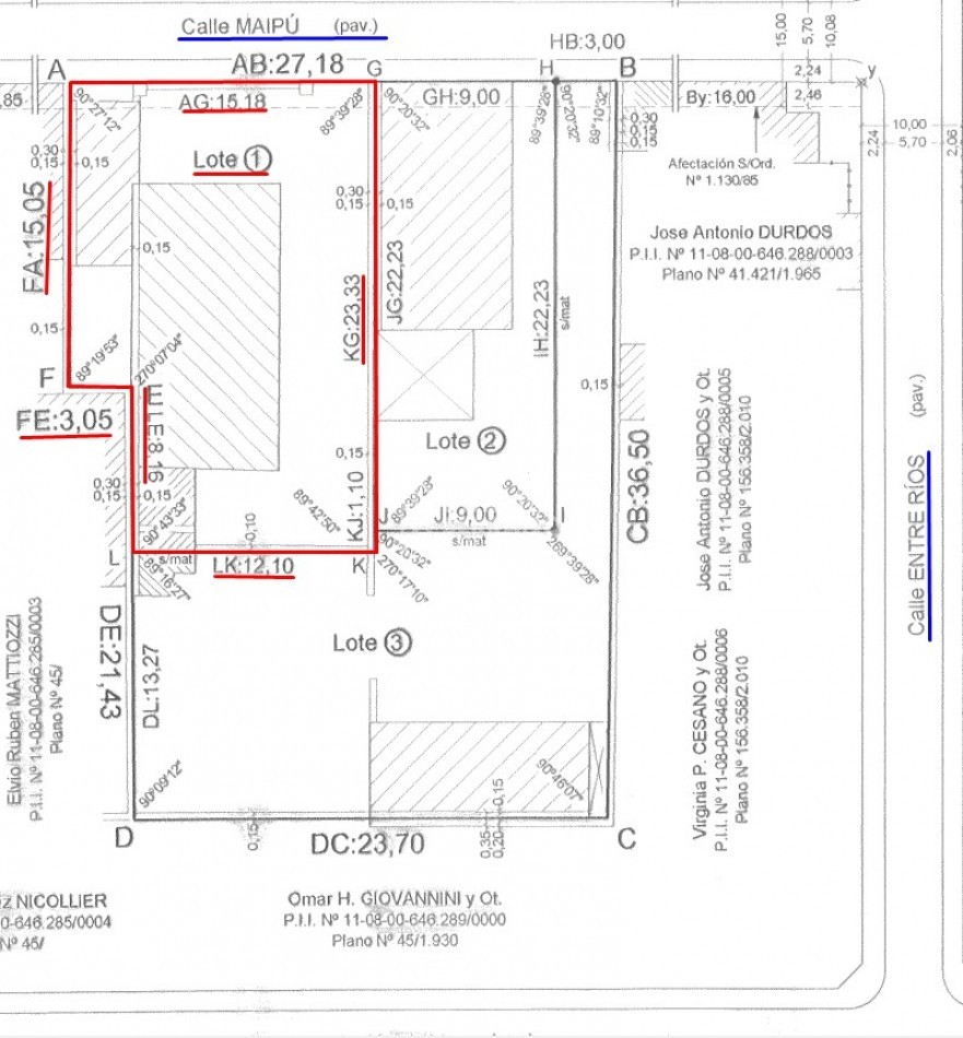
• CASA-HABITACIÓN / 27 MTS. DE FRENTE! BARRIO PROGRESO!
• Techos e instalaciones nuevas.
• Reciclado en marcha.

*UBICACIÓN:
• MAIPU 246.
• Entre Corrientes y Entre Ríos.

*SUPERFICIES:
• TOTAL: 328,30 m2
• CUBIERTA: 144 m2.

*MEDIDAS:
• 27,18 mts. de frente al Norte.
• 23,33 mts. de fondo Lado Este.
• 12,10 mts. de contrafrente al sur.

*COMPOSICIÓN/AMBIENTES:
• Jardín frontal.
• Recepción.
• Living.
• Comedor.
• Cocina-Comedor.
• Baño.
• 2 Dormitorios.
• 2 Cocheras
. Una totalmente cerrada.
- Otra semi-cubierta.
• Patios: Lateral (al Este) / Posterior (al Sur) / Pulmón de aire y luz al Oeste contiguo a Cochera.
• Lavadero-depósito.

*SERVICIOS:
• Todos.

*SE DESTACA:
• Buen lote.
• Excelente ubicación.

*PLUS:
• Reciclado parcial en marcha:
- Techos de chapa con canaletas y cenefas nuevos.
- Instalaciones aéreas de electricidad, gas y agua nuevas.

Mas detalles
Ver video de la propiedad