+5493404630253
En Venta
SANTA CLARA - CASA+LOCALES EN ESQUINA!
Código: 42691

MINGURA 690, Santa Clara De Buena Vista, Santa Fe, Argentina.

USD40.000

Casa con Local
Compartir esta Propiedad

Descripción de la Propiedad

*DIRECCIÓN: Mingurá 690 – Santa Clara de la Buena Vista.

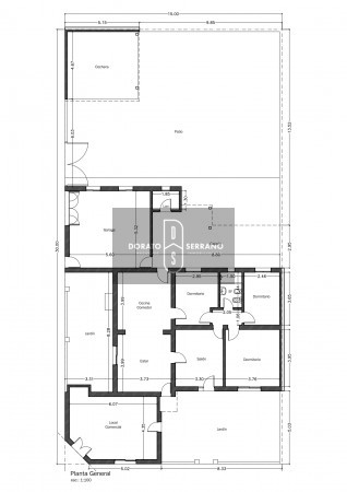
*TIPOLOGÍA: Inmueble en esquina albergando en la actualidad: 1 Casa-Habitación + 2 locales comerciales.

*SUPERFICIES:
Superficie del terreno: 450 m2.
Superficie cubierta: 220 m2.

*AMBIENTES/DISTRIBUCIÓN:
a-Sala de estar.
b- Tres dormitorios.
c- Baño.
d- Cochera.
e- Patio-jardín-
f- Galería.
G- Locales uno sobre ochava y otro sobre Mingurá.

*PERFIL DE INVERSIÓN - El inmueble se presta por igual:
• Para quien conservando la estructura actual quiera hacerse de VIVIENDA + ESPACIOS DE TRABAJO O RENTA POR ALQUILER DE SUS LOCALES.
• Quien aprovechando los 450 m2 de terreno y modificando la estructura actual, decida construir una casa de gama media o alta.

Mas detalles